Negozio in vendita

Roma, Via Luigi Magrini - Marconi
€ 105.000
Prezzo aggiornato
2 locali 2 locali
35 Mq 35 Mq
1 bagno 1 bagno

Negozio in vendita

Roma, Via Luigi Magrini - Marconi

Descrizione annuncio

MARCONI - LOCALE AD USO INVESTIMENTO

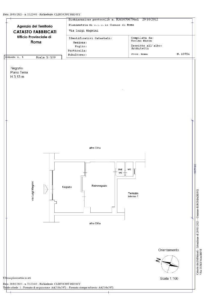
Agenzia Tecnocasa Immobili Commerciali Marconi propone in vendita AD USO INVESTIMENTO, nelle immediate vicinanze di viale Marconi, un locale commerciale di 35 mq con una vetrina su strada e composto internamente da due ambienti, anti bagno e bagno. L’immobile, inserito in un contesto prettamente commerciale è stato recentemente ristrutturato ed è locato ad attività di caf/patronato al canone annuo di € 9.600,00.

Sito in Via Luigi Magrini.

Euro 105.000,00

INFO TECNOCASA VIA DELLA MAGLIANA N. 180

06/5515929

Mostra tutto

Nelle vicinanze

Trasporto pubblico Trasporto pubblico
Garbatella
Garbatella
1,1 Km
Basilica di San Paolo
Basilica di San Paolo
1,3 Km
Roma Trastevere
Roma Trastevere
850 m
Basilica San Paolo
Basilica San Paolo
1,3 Km
Stazione Trastevere
Stazione Trastevere
980 m
Ricariche auto elettriche Ricariche auto elettriche
Eneldrive Croce Rossa Italiana
840 m
Roma Nicolò da Pistoia | EnelX
1,5 Km
Eataly Roma Ostiense | EnelX
1,5 Km
Roma Il Milione | EnelX
1,7 Km
Roma Capitale - Dipartimento Mobilità e Trasporti | EnelX
1,9 Km
Scuole Scuole
Scuola Pubblica Elementare Vincenzo Cuoco
150 m
Scuole
160 m
Istituto Comprensivo "Giuseppe Bagnera"
360 m
Scuola Elementare Giovanni Pascoli
530 m
Roma Tre - Facoltà di Scienze Della Formazione
810 m
Farmacia Farmacia
Farmacia Marconi
100 m
Farmacia Inglese
260 m
Farmacia
370 m
farmacia della radio
550 m
Farmacia San Paolo
740 m
Ospedali Ospedali
Ospedale Pediatrico Bambino Gesù - Sede di San Paolo
930 m
Istituto nazionale per le malattie infettive "Lazzaro Spallanzani"
990 m
Ares 118
990 m
Ospedale Pediatrico Bambino Gesù - Sede di via Baldelli
1,0 Km
San Camillo-Forlanini
1,2 Km
Supermercati Supermercati
Simply
90 m
Pim
370 m
Pewex Gros
390 m
Supermercato Caselli
710 m
Todis
1,1 Km
Negozi Negozi
Golden Point
40 m
Timberland
40 m
OVS Kids
80 m
MaxMara
90 m
Brums
130 m
Bar Bar
Barberini
130 m
Shikafè
170 m
Bar Mario Tornatora
390 m
Bar Pepe e Tabacchi
400 m
Little Coffee
470 m
Ristoranti Ristoranti
Vicolo del Gusto 158
140 m
la Taverna del Vicolo
150 m
Condominio Marconi
160 m
allbibox marconi
160 m
Birrificio Marconi
180 m
Mostra tutto

Caratteristiche

Rif.:
61067148
Piano:
Terra di 9
Totale piani:
9
Condizionamento:
Autonomo
Ascensore:
No
Riscaldamento:
Assente
Mostra tutto
Prezzo Prezzo
€ 105.000
Rata mutuo Rata mutuo
€ 496 / mese
Proponi il tuo prezzoProponi il tuo prezzo

Altre caratteristiche

Descrizione dei locali
Bagno Con Finestra

Classe Energetica

G
G
G
G
G
G
G
G
G
EP invernale del fabbricato:
EP estiva del fabbricato:
Anno di costruzione:
1950
Riscaldamento:
Assente

Prezzo ridotto di €1 (5%%)

Ti interessa visionare l'immobile?

Fissa un appuntamento  Fissa un appuntamento

Richiedi informazioni

Clicca su Leggi per aprire l'informativa
* Questi campi sono obbligatori

Calcola il tuo mutuo

Semplice e senza impegno
Anticipo

( % )
Mutuo

( % )

pochi semplici passi

inserisci i tuoi dati
Questionario completato
Grazie per aver richiesto un appuntamento senza impegno con un nostro Consulente del Credito e Assicurativo.

Hai inserito correttamente tutti i dati necessari e a breve riceverai una e-mail con un link da convalidare per inviare i tuoi dati.
Affiliato
Immobili Commerciali Marconi Srls
Via Della Magliana, 180 00146 Roma (RM)

Il nostro staff


  • Denise Fabriani
    Affiliata

  • Emanuele Baiocchi
    Collaboratore

  • Alessio Buffone
    Collaboratore

  • Tania Pettinari
    Coordinatrice

  • Andrea Vertolo
    Collaboratore
Via Della Magliana, 180 00146 Roma (RM)
Zona: Marconi-Trastevere-Portuense-Colli Portuensi-Monteverde-C.ne Gianicolense-Magliana-Trullo
Mostra su mappa
Orari: dal lunedì al venerdì: dalle ore 9.00 alle 19.30 - sabato dalle ore 9.00 alle 13.00.
Affiliato
Immobili Commerciali Marconi Srls
Via Della Magliana, 180 00146 Roma (RM)

2025 Tecnocasa Franchising S.p.A. - P. IVA 08365160152 - Via Monte Bianco 60/A 20089 Rozzano (MI). Ogni agenzia ha un proprio titolare ed è autonoma. Privacy policy | Policy utilizzo | Cookie policy