Laboratorio in vendita

Roma, Via Della Magliana Nuova - Magliana Nuova
3 locali 3 locali
370 Mq 370 Mq
2 bagni 2 bagni

Laboratorio in vendita

Roma, Via Della Magliana Nuova - Magliana Nuova

Descrizione annuncio

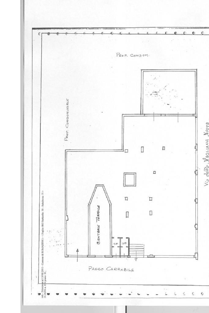
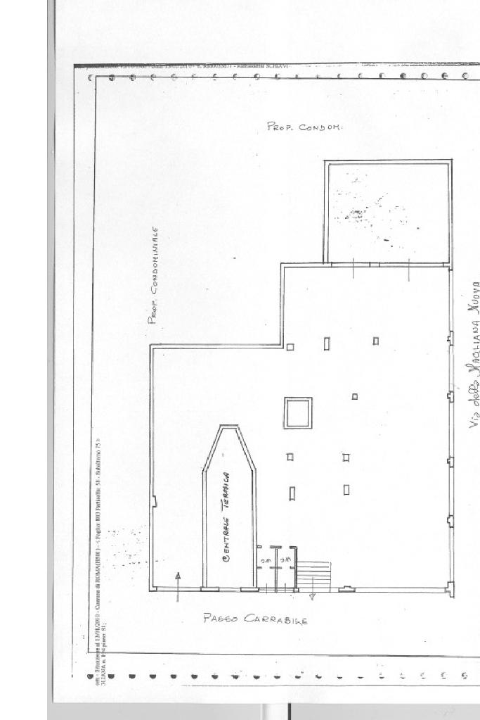
MAGLIANA - CAPANNONE ARTIGIANALE


Agenzia Tecnocasa Immobili Commerciali Marconi propone in vendita capannone artigianale di 370 mq composto da un unico grande ambiente, zona ufficio e doppi servizi. Doppio accesso, uno carrabile e uno pedonale da Via della Magliana Nuova. Caratterizzato da un’ampia servitù di passaggio esterna utile per carico/scarico merci anche con mezzi pesanti e possibilità di entrare all’interno del laboratorio tramite una serranda elettrica. L’immobile gode di ottima luminosità in quanto dotato di più finestre e si presenta in ottime condizioni interne, ideale per ogni tipo di laboratorio. Dotato di canna fumaria.

Sito in Via della Magliana Nuova.
Classe energ. G Euro 340.000,00 + IVA INFO TECNOCASA VIA DELLA MAGLIANA N. 180

06/5515929

Mostra tutto

Nelle vicinanze

Trasporto pubblico Trasporto pubblico
EUR Magliana
EUR Magliana
1,6 Km
Marconi
Marconi
1,6 Km
Basilica San Paolo
Basilica San Paolo
1,8 Km
Roma Trastevere
Roma Trastevere
2,3 Km
Gianicolense/San Camillo
Gianicolense/San Camillo
2,0 Km
Ricariche auto elettriche Ricariche auto elettriche
Garage Berardo | EnelX
990 m
Supermercato PIM Newton
1,5 Km
Roma Val Fiorita | EnelX Fast
1,6 Km
Roma Val Fiorita | EnelX
1,6 Km
Eneldrive Palazzo della Civiltà Italiana
1,8 Km
Scuole Scuole
Roma Tre - Facoltà di Scienze Matematiche, Fisiche e Naturali
610 m
Scuole
670 m
Istituto Comprensivo "Via Solidati Tiburzi"
710 m
Roma Tre - Dipartimento di Fisica "Edoardo Amaldi"
910 m
Istituto Paritario "A. Ruiz"
960 m
Farmacia Farmacia
Farmacia
330 m
Farmacia
690 m
Parafarmacia doc*Frattini
790 m
Farmacia Portuense
1,2 Km
Farmacia Sant'Anna
1,3 Km
Ospedali Ospedali
Ospedale Carlo Forlanini
1,4 Km
Istituto nazionale per le malattie infettive "Lazzaro Spallanzani"
1,5 Km
Ospedale Pediatrico Bambino Gesù - Sede di via Baldelli
1,5 Km
Ospedale Pediatrico Bambino Gesù - Sede di San Paolo
1,6 Km
European Hospital
1,8 Km
Supermercati Supermercati
Supermercati
640 m
Lidl
760 m
doc*Frattini
770 m
Conad
1,4 Km
Todis
1,5 Km
Negozi Negozi
Negozi
580 m
Il mercatino delle birbe
1,3 Km
Baby Outlet
1,5 Km
Roma Store
1,6 Km
Upim
1,6 Km
Bar Bar
Bistrot 139
970 m
Bar
970 m
Little Coffee
1,3 Km
Bar Filippi
1,5 Km
Shikafè
1,6 Km
Ristoranti Ristoranti
Mattarello
380 m
Ristoranti
520 m
Sfizi Hop
750 m
Ciclostazione Frattini
790 m
Sapori di casa
910 m
Mostra tutto

Caratteristiche

Rif.:
61159211
Piano:
Ammezzato di 7
Totale piani:
7
Condizionamento:
Autonomo
Ascensore:
No
Riscaldamento:
Assente
Mostra tutto
Prezzo Prezzo
€ 340.000
Rata mutuo Rata mutuo
€ 1.615 / mese
Anche in affitto a
Proponi il tuo prezzoProponi il tuo prezzo

Altre caratteristiche

Classe Energetica

G
G
G
G
G
G
G
G
G
EP globale non rinnovabile:
180.00 kW h/m² anno
EP globale rinnovabile:
180.00 kW h/m² anno
EP invernale del fabbricato:
EP estiva del fabbricato:
Anno di costruzione:
1960
Riscaldamento:
Assente

Ti interessa visionare l'immobile?

Fissa un appuntamento  Fissa un appuntamento

Richiedi informazioni

Clicca su Leggi per aprire l'informativa
* Questi campi sono obbligatori

Calcola il tuo mutuo

Semplice e senza impegno
Anticipo

( % )
Mutuo

( % )

pochi semplici passi

inserisci i tuoi dati
Questionario completato
Grazie per aver richiesto un appuntamento senza impegno con un nostro Consulente del Credito e Assicurativo.

Hai inserito correttamente tutti i dati necessari e a breve riceverai una e-mail con un link da convalidare per inviare i tuoi dati.
Affiliato
Immobili Commerciali Marconi Srls
Via Della Magliana, 180 00146 Roma (RM)

Il nostro staff


  • Denise Fabriani
    Affiliata

  • Emanuele Baiocchi
    Collaboratore

  • Alessio Buffone
    Collaboratore

  • Tiziana Di Vernieri
    Coordinatrice

  • Tania Pettinari
    Coordinatrice

  • Andrea Vertolo
    Collaboratore
Via Della Magliana, 180 00146 Roma (RM)
Zona: Marconi-Trastevere-Portuense-Colli Portuensi-Monteverde-C.ne Gianicolense-Magliana-Trullo
Mostra su mappa
Orari: dal lunedì al venerdì: dalle ore 9.00 alle 19.30 - sabato dalle ore 9.00 alle 13.00.
Affiliato
Immobili Commerciali Marconi Srls
Via Della Magliana, 180 00146 Roma (RM)

2026 Tecnocasa Franchising S.p.A. - P. IVA 08365160152 - Via Monte Bianco 60/A 20089 Rozzano (MI). Ogni agenzia ha un proprio titolare ed è autonoma. Privacy policy | Policy utilizzo | Cookie policy