Attività in vendita

Roma, Via Damiano Macaluso - Marconi
€ 48.000
2 locali 2 locali
65 Mq 65 Mq
2 bagni 2 bagni

Attività in vendita

Roma, Via Damiano Macaluso - Marconi

Descrizione annuncio

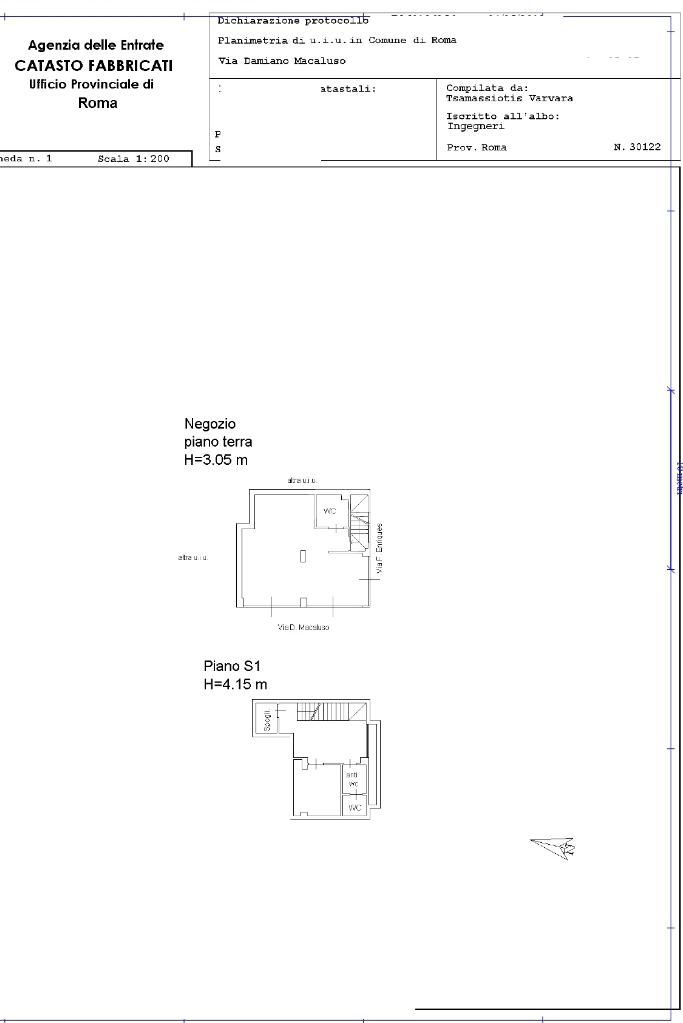
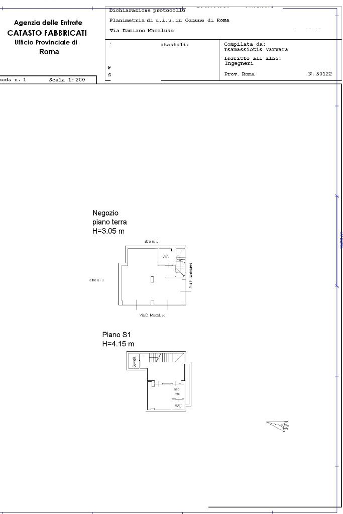
MARCONI – ATTIVITA’ DI CAFFETTERIA/GELATERIA

La Immobili Commerciali Marconi Srls propone in vendita, una storica attività di caffetteria/gelateria con somministrazione. Immerso in un contesto di diverse attività commerciali, l’attività vanta una storicità decennale nella zona, si sviluppa in un locale commerciale di 40 mq con tre ampie vetrine angolari composto internamente da unico ambiente adibito ad area lavoro e servizio ed un sotto negozio di 25 mq con piccolo spogliatoio, anti bagno e bagno. L’immobile si presenta in ottime condizioni interne, climatizzato e dotato di impianto di immissione/estrazione aria.

L'attività viene ceduta pronta all’uso e completa di tutta la stigliatura tra cui: vetrina frigo per esposizione gelati, espositore refrigerato snack, banco bar professionale con celle refrigerate, bilancia elettronica, montapanna, spremiagrumi, frullatore, frullatore per frappè, estrattore succo, granitore per crema caffè, due forni microonde, piastra elettrica per tramezzini, congelatore verticale, congelatore orizzontale a pozzo, armadio frigorifero per bibite, 3 mobili retro banco in acciaio inox, tavolo inox, pensile, due scaffali a cinque piani, tavoli e sedie.

Sito in Via Damiano Macaluso

Euro 48.000,00

INFO TECNOCASA VIA DELLA MAGLIANA N. 180

06/5515929

Mostra tutto

Nelle vicinanze

Trasporto pubblico Trasporto pubblico
Basilica di San Paolo
Basilica di San Paolo
1,1 Km
Garbatella
Garbatella
1,3 Km
Roma Trastevere
Roma Trastevere
1,1 Km
Basilica San Paolo
Basilica San Paolo
1,1 Km
Stazione Trastevere
Stazione Trastevere
1,2 Km
Ricariche auto elettriche Ricariche auto elettriche
Eneldrive Croce Rossa Italiana
1,0 Km
Roma Nicolò da Pistoia | EnelX
1,6 Km
Eataly Roma Ostiense | EnelX
1,8 Km
Roma Il Milione | EnelX
2,0 Km
Roma Capitale - Dipartimento Mobilità e Trasporti | EnelX
2,1 Km
Scuole Scuole
Istituto Comprensivo "Giuseppe Bagnera"
170 m
Scuola Elementare Giovanni Pascoli
260 m
Scuola Pubblica Elementare Vincenzo Cuoco
450 m
Scuole
460 m
Ente Nazionale Giuseppini del Murialdo San Paolo
670 m
Farmacia Farmacia
Farmacia
160 m
Farmacia Marconi
310 m
Farmacia Inglese
510 m
farmacia della radio
770 m
Farmacia San Paolo
860 m
Ospedali Ospedali
Ospedale Pediatrico Bambino Gesù - Sede di San Paolo
780 m
Ospedale Pediatrico Bambino Gesù - Sede di via Baldelli
850 m
Istituto nazionale per le malattie infettive "Lazzaro Spallanzani"
930 m
Ares 118
1,1 Km
San Camillo-Forlanini
1,2 Km
Supermercati Supermercati
Simply
300 m
Pim
330 m
Pewex Gros
650 m
Supermercato Caselli
850 m
Todis
920 m
Negozi Negozi
Baby Outlet
110 m
Upim
150 m
Roma Store
150 m
Jessica
150 m
Brums
180 m
Bar Bar
Shikafè
130 m
Barberini
170 m
Little Coffee
200 m
Bar Mario Tornatora
570 m
Bar Pepe e Tabacchi
640 m
Ristoranti Ristoranti
Ristorante Giapponese Yuki
120 m
da Salvo
120 m
Taverna Sciuscella
150 m
allbibox marconi
240 m
la Taverna del Vicolo
240 m
Mostra tutto

Caratteristiche

Rif.:
61177181
Piano:
Terra di 6
Totale piani:
6
Condizionamento:
Autonomo
Ascensore:
No
Riscaldamento:
Assente
Mostra tutto
Prezzo Prezzo
€ 48.000
Rata mutuo Rata mutuo
€ 226 / mese
Proponi il tuo prezzoProponi il tuo prezzo

Altre caratteristiche

Classe Energetica

G
G
G
G
G
G
G
G
G
EP globale non rinnovabile:
180.00 kW h/m² anno
EP globale rinnovabile:
180.00 kW h/m² anno
EP invernale del fabbricato:
EP estiva del fabbricato:
Anno di costruzione:
1960
Riscaldamento:
Assente

Ti interessa visionare l'immobile?

Fissa un appuntamento  Fissa un appuntamento

Richiedi informazioni

Clicca su Leggi per aprire l'informativa
* Questi campi sono obbligatori

Calcola il tuo mutuo

Semplice e senza impegno
Anticipo

( % )
Mutuo

( % )

pochi semplici passi

inserisci i tuoi dati
Questionario completato
Grazie per aver richiesto un appuntamento senza impegno con un nostro Consulente del Credito e Assicurativo.

Hai inserito correttamente tutti i dati necessari e a breve riceverai una e-mail con un link da convalidare per inviare i tuoi dati.
Affiliato
Immobili Commerciali Marconi Srls
Via Della Magliana, 180 00146 Roma (RM)

Il nostro staff


  • Denise Fabriani
    Affiliata

  • Emanuele Baiocchi
    Collaboratore

  • Alessio Buffone
    Collaboratore

  • Tania Pettinari
    Coordinatrice

  • Andrea Vertolo
    Collaboratore
Via Della Magliana, 180 00146 Roma (RM)
Zona: Marconi-Trastevere-Portuense-Colli Portuensi-Monteverde-C.ne Gianicolense-Magliana-Trullo
Mostra su mappa
Orari: dal lunedì al venerdì: dalle ore 9.00 alle 19.30 - sabato dalle ore 9.00 alle 13.00.
Affiliato
Immobili Commerciali Marconi Srls
Via Della Magliana, 180 00146 Roma (RM)

2026 Tecnocasa Franchising S.p.A. - P. IVA 08365160152 - Via Monte Bianco 60/A 20089 Rozzano (MI). Ogni agenzia ha un proprio titolare ed è autonoma. Privacy policy | Policy utilizzo | Cookie policy